392030_Plan_2_A3_oRand
392030_Plan_1_A3_oRand
Impressum
Wohnungsbau
    housing projects     
         proyectos de vivienda
 
392030_Perspektive_Kopie
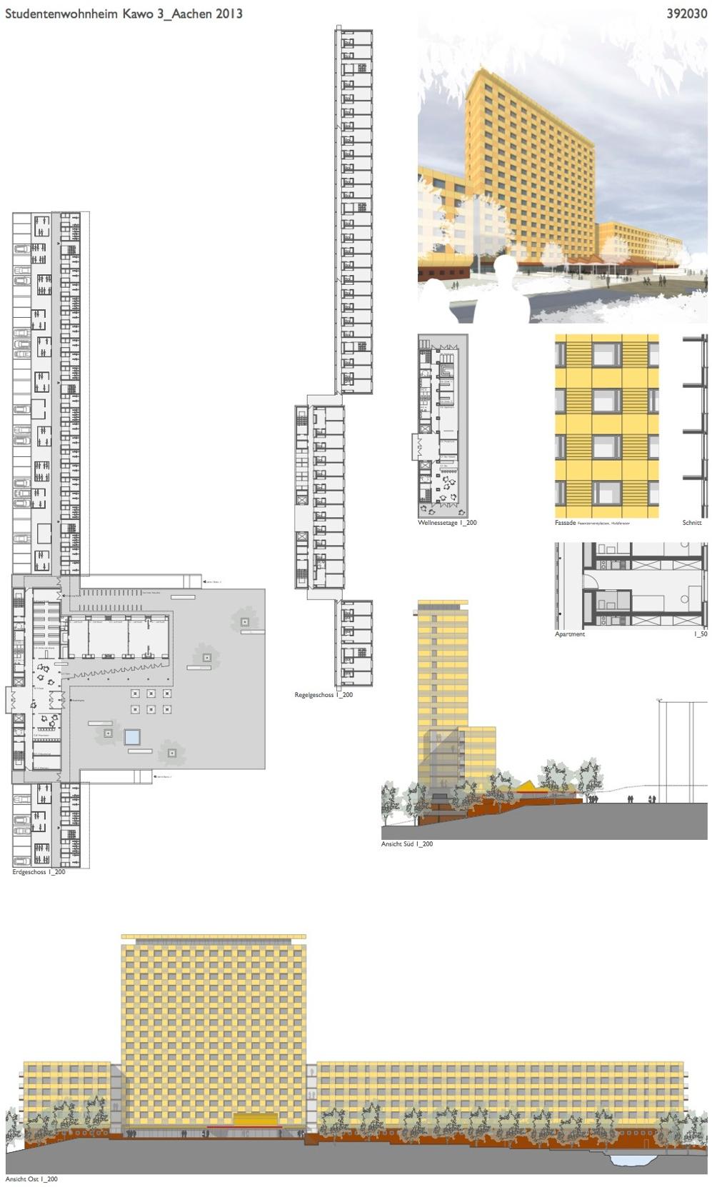
KaWo3 - Studierenden-Wohnheim in Aachen
    KaWo3 - students' residence in Aachen     
         KaWo3 - residencia de estudiantes en Aachen  
 
                                                   Wettbewerb 2013 mit Alexander Lusin
 

volkmar

nickol

architekt_en*

Projekte
    projects
         proyectos
*Leute
    *people
         *gente
Aktivitäten
    activities
         actividades
Kontakt
    contact
         contacto