DMM_Foyer
DMMWasserseite
Wasserseite
Ozeaneum - Deutsches Meeresmuseum in Stralsund
    Ozeaneum - German Maritime Museum in Stralsund     
         Ozeaneum - Museo Marítimo Alemán en Stralsund
Impressum
Wettbewerb 2002 mit Rafael Eßer
4. Preis
DMM_Robgal
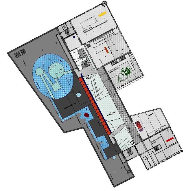
DMM1EG_klein
EG
 
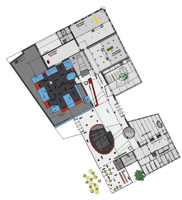
OG2
DMM2OG_klein
 
OG3
DMM3OG_klein
 
DG
DMM4DG_klein
 
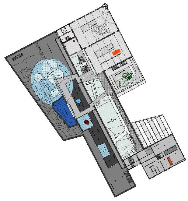
DA
DMM5DA_klein
 
DMM_Lageplan
DMM_Halle
DMM_Elementarteilchen
Elementarteilchen
DMMSchnitt
Schnitt
DMMStadtseite
Landseite
Blick in die Halle
Foyer

volkmar

nickol

architekt_en*

Projekte
    projects
         proyectos
*Leute
    *people
         *gente
Aktivitäten
    activities
         actividades
Kontakt
    contact
         contacto